Referenzen
Betonüberwachungen
Machen Sie sich gerne ein Bild von unseren vergangenen Bauprojekten und betreuten Baustellen.

Windkraft-Fundament
- Güllebehälter
- Windparks
- Biogasanlagen
- Div. Hochbauten
- Erlebniszentrum Naturgewalten Sylt
- Containerterminal Hamburg Altenwerder
- Tankstellen
- Kläranlagen
- Autoverladung Sylt / Westerland
- Sylter Welle
- Wasserbauwerke
Eisenbahnhochbrücke Rendsburg über den Nord-Ostsee-Kanal
Objektplanung

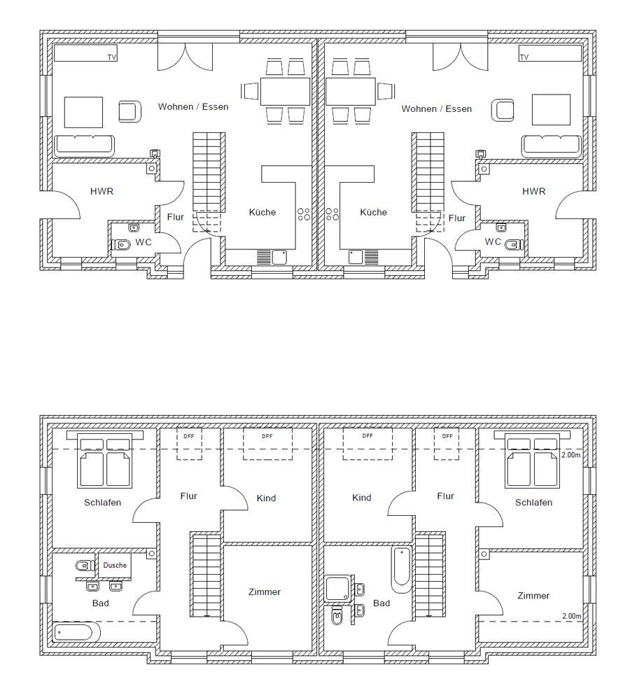
Objektplanung Grundriss
Objektplanung
Tragwerksplanung (Statik)

Tragwerksplanung (Statik)
Tragwerksplanung (Statik)























