Objektplanung (Bauanträge)
Zielgerichtete Planung nach Ihren Wünschen
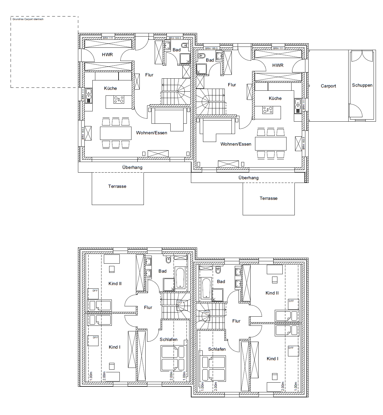
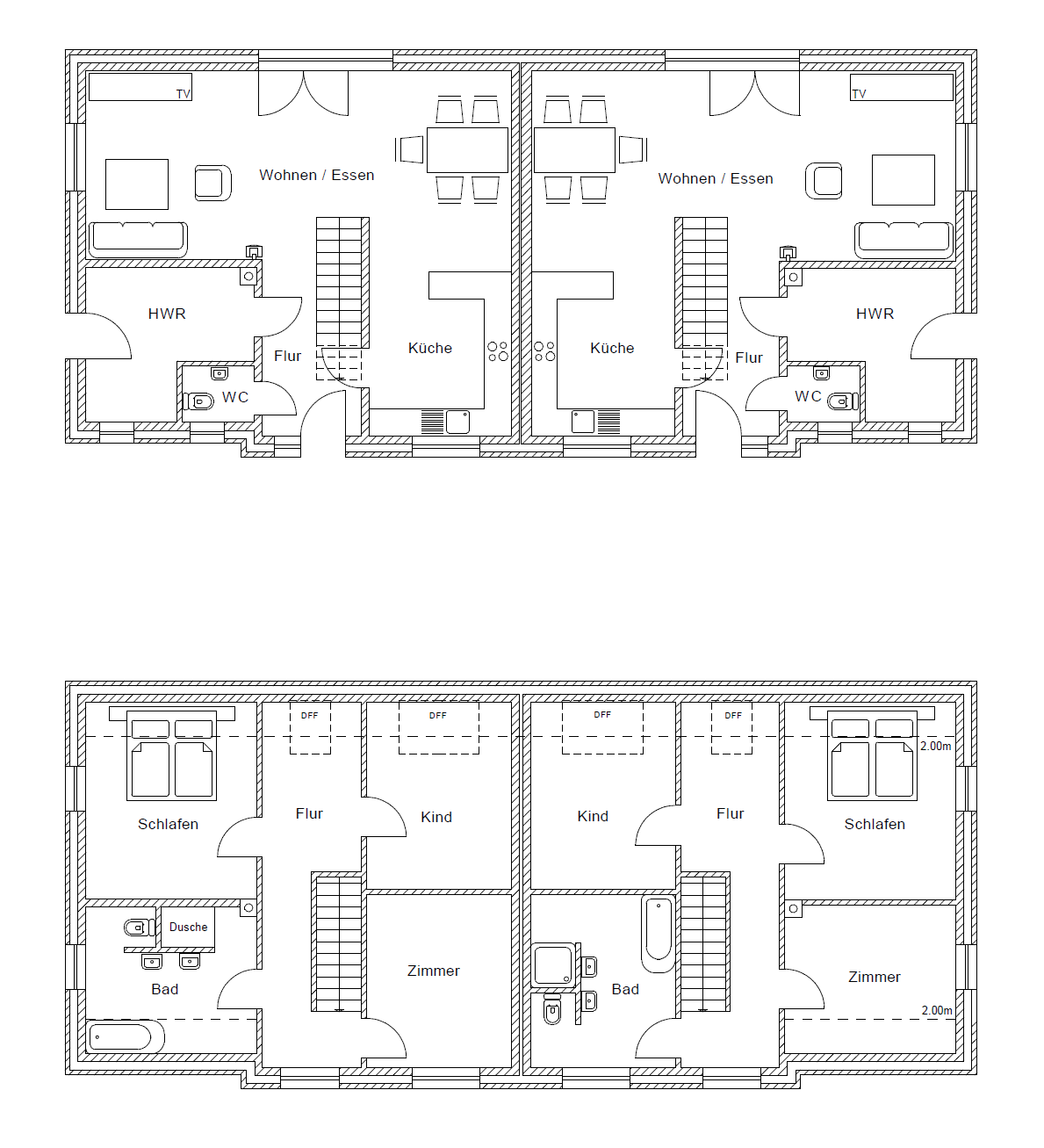
Sie wollen ein Bauprojekt realisieren? Ob Carport, Einfamilien- oder Mehrfamilienhaus, wir planen Ihr Traumbauwerk nach individuellen Wünschen. Die Bauantragsplanung wird für Sie von uns übernommen. Auch Umbauten im Bestand werden von unseren kompetenten Mitarbeitern gerne umgesetzt. Wir wickeln alle Planungsprozesse in unserem Unternehmen ab. Die statische Berechnung sowie der Wärmeschutznachweis werden nach der Planung von uns übernommen.
Auch im landwirtschaftlichen Bereich sind wir zu Hause. Stallbauten sowohl als Umbau als auch als Neubau, sowie die Planung von Siloplatten wurden in der Vergangenheit von uns erfolgreich durchgeführt.
Wir bieten folgende Leistungen an:
Erstellen von Bauanträgen (Neubauten und Umbau von Bestandsgebäuden)
Planung von Einfamilien- und Mehrfamilienhäusern
Planung von Ingenieurbauwerken
Planung im landwirtschaftlichen Bereich
Ihr Vorhaben ist nicht aufgelistet? Rufen Sie uns gerne an, wir übernehmen auch spezielle Vorhaben.
Wir sind eingetragen in die Liste der Beratenden und bauvorlageberechtigten Ingenieure der Architekten und Ingenieurkammer Schleswig-Holstein. Somit können viele Projekte mit einem vereinfachten Genehmigungsverfahren durchgeführt werden.
Wir bieten Objektplanungen im Hochbau (Gebäude und Ingenieurbauwerke) in allen Leistungsphasen der HOAI.



